Arqueología y Territorio Medieval 32, 2025. e9476. I.S.S.N.: 1134-3184 DOI: 10.17561/aytm.v32.9476
From Palace to castle: chronostratigraphic and structural analysis of the Late Medieval Old Castle of Manzanares El Real (Madrid). Archaeological work 2021-2024
Javier Salido Domínguez1, Joaquín Barrio Martín2, Rosario Gómez Osuna3, Fernando Checa Vallés4, Elvira García Aragón5, Santiago Palacios Ontalva6
Recibido: 8/02/2025
Aprobado: 7/06/2025
Publicado: 29/07/2025
RESUMEN
Se dan a conocer los resultados más destacados de las investigaciones realizadas sobre el denominado Castillo Viejo de Manzanares El Real, enfocado tanto a la revisión de la documentaria escrita como a los resultados de las cuatro campañas arqueológicas realizadas entre 2021 y 2024. Las nuevas actuaciones confirman la presencia de un palacio del siglo XIV que conserva restos de la fachada decorada con esgrafiado segoviano que, a mediados del siglo XV, se fortifica siguiendo el modelo de los castillos propios del momento.
Palabras clave: Esgrafiado, técnica constructiva, palacio, castillo, Madrid.
ABSTRACT
The most notable results of the research carried out on the so-called Castillo Viejo of Manzanares El Real have been released, focusing both on the review of written documentation and the findings from the four archaeological campaigns carried out between 2021 and 2024. These new efforts confirm the presence of a 14th-century palace that preserves remains of the façade decorated with Segovian sgraffito, which, in the mid-15th century, was fortified following the model of castles of this period.
Keywords: Medieval archaeology, sgraffito, construction technique, palace, castle, Madrid.
El Castillo Viejo está situado en un pequeño cerro junto al río Manzanares y la Cañada Real Segoviana en el municipio de Manzanares El Real al noroeste de la Comunidad de Madrid (Figura 1.). Se conservan los cuatro lienzos de la muralla hasta una altura de alrededor de tres-cuatro metros y, actualmente, está integrado en la trama urbana de la población, dentro de una zona ajardinada. La fortaleza presenta tres torres circulares y una cuadrada correspondiente a la torre del homenaje al este. En este flanco cuenta con un acceso abierto donde se dispuso la entrada original.

Figura 1. Localización del castillo y del municipio en la Comunidad de Madrid. Imagen: equipo arqueológico del Castillo Viejo de Manzanares El Real sobre la base de Google Earth.
En el año 2020 el Ayuntamiento de Manzanares El Real adquiere los restos del castillo conocido como El Viejo y se inicia un proyecto arqueológico, didáctico, ciudadano e inclusivo, en el que participan la Dirección General de Patrimonio Cultural de la Comunidad de Madrid, la Universidad Autónoma de Madrid y el Ayuntamiento de Manzanares El Real.
Los objetivos del proyecto aúnan la investigación sobre la fortaleza, la conservación preventiva de la estructura, la participación de vecinos e interesados de forma voluntaria en las excavaciones, la formación en prácticas de estudiantes de grado y máster y la colaboración de miembros de la asociación APADIS de personas con diversidad funcional.
Se iniciaron las actuaciones en el año 2020 con una limpieza mecánica del interior y exterior inmediato del castillo, un estudio documental e histórico, un estudio geofísico con georradar y un diagnóstico de patologías de conservación. Un año después comienza la primera campaña de excavaciones arqueológicas, desarrollada entre junio y julio de 2021, que se han ido sucediendo durante el mes de junio de cada año hasta el presente (Figura 2.).

Figura 2. Imagen aérea del castillo tras la excavación del año 2021 donde se aprecia el cementerio adosado a la fachada meridional de la fortaleza. Imagen: equipo arqueológico del Castillo Viejo de Manzanares El Real.
Aunque el proyecto se ha iniciado recientemente, muchos son los avances producidos en el conocimiento de la historia de la fortaleza, de las características del yacimiento arqueológico, así como del impacto social y académico a nivel local (autores).
El valle del alto Manzanares constituyó una zona de conflicto y lucha entre los concejos de Segovia y Madrid desde mediados del siglo XII. La repoblación, llevada a cabo entre la vertiente meridional de la sierra de Guadarrama y los concejos organizados en la margen derecha del Tajo, se hizo de forma apresurada, improvisada y sin una correcta planificación y se vio afectada, durante mucho tiempo, por las luchas y los enfrentamientos derivados de las ambiciones concejiles, de la avidez de la nobleza urbana y de los errores y falta de visión de los monarcas (González Crespo, 2010: 240-241). Esta desorganización explica las decisiones desafortunadas de los diferentes monarcas, lo que agravó el conflicto entre segovianos y madrileños. El territorio donde se emplaza Manzanares El Real fue entregado en mayo de 1152 al Concejo de Madrid por parte de Alfonso VII que establece como límite del Concejo madrileño la cuerda de la sierra que desde el puerto de El Berrueco (punto divisorio entre Ávila y Segovia) llega hasta el de Lozoya (cf. González Crespo, 2010: 242). Estos territorios son confirmados por su nieto Alfonso VIII mediante el privilegio rodado del 31 de enero de 1176. Sin embargo, treinta y dos años después, el privilegio rodado del mismo rey, Alfonso VIII, del 28 de julio de 1208, establece una nueva delimitación que beneficia a Segovia al adueñarse de los cursos altos de los ríos Guadarrama y Manzanares. Con los nuevos linderos establecidos el 12 de diciembre de 1208, Segovia se anexionaba los territorios de Manzanares y Lozoya, convirtiéndolos en sexmos y obviando totalmente la donación que Alfonso VII hizo a la villa madrileña. Sin embargo, esta última no borraría de su memoria sus derechos e iniciaría pronto una lucha reivindicativa contra Segovia, que se prolongaría varios siglos. La debilidad demográfica y política de la villa de Madrid facilitó la expansión segoviana, que controlaba la cuenca alta del Manzanares a comienzos del siglo XIII. En este momento los segovianos continúan levantando pueblas como Manzanares, además de Chozas (Soto del Real), Colmenar (Colmenar Viejo) y Porquerizas (Miraflores de la Sierra) (Tormo, 1946; Martínez Moro, 1985: 22-23; Segura Graíño, 1995: 49-56).
El reinado de Fernando III, lejos de solucionar los conflictos, los agravó. Un privilegio rodado del 20 de junio de 1239, un mandato de 24 de septiembre de 1248 y una carta abierta de 24 de agosto de 1249 amparaban los derechos de Madrid sobre la zona. Especialmente interesante es el último documento porque dispone que en los términos de Manzanares no se puedan levantar pueblas ni realizar cultivos, acotando además una zona comunal aprovechada por ambos concejos, donde puedan cortar leña o pastar con sus ganados. Aunque señala que en la Navidad del año 1250 acudiría a la zona para solucionar la querella, la muerte acaecida en ese mismo año dejó sin solución el pleito (González y González, 1975: 354-355). El interés por los pastos de montaña y el dominio de las cañadas en pleno auge de la ganadería extensiva trashumante explica esta enconada lucha.
La intervención regia sobre el territorio se consolida con Alfonso X cuando nombra un oficial (justicia mayor del rey) como representante de su autoridad en dichos territorios. Las continuas cartas y mandatos fechados entre 1268 y 1275 evidencian el conflicto constante. Ante las continuas quejas de los madrileños y la irrupción de los segovianos en este territorio, Alfonso X opta en 1275 por integrar una parte al realengo y otra a Madrid, respetando los derechos de usufructo de los madrileños, no solo en la parte que se les adjudicaba, sino también en la parte del realengo. Obviamente los segovianos no respetaron estas condiciones durante el reinado de Sancho IV, sucesor de Alfonso X, a finales del siglo XIII. En una carta de Sancho IV a la villa de Madrid fechada en 1295, el rey hizo entrega del Real a su tío, el infante don Enrique, el senador. Entre los miembros de la familia real que fueron titulares del Real de Manzanares se encuentra, además del infante don Enrique, hijo de Fernando III, también don Alfonso de la Cerda, nieto mayor de Alfonso X.
En la carta abierta de Fernando IV donde anula las cartas firmadas por el justicia del Real de Manzanares, Ferrán Lorenzo, en 1303, no hace mención a ningún palacio ni castillo como residencia del justicia del Real, sino a su casa7:
a Segovia e que les mostrara la mi carta en que les defendía que non fuesen al dicho Real ni enbiasen e ellos des que lo sopieron que vieron a do estava en su casa e que çerraron las casas e lo oviera a matar e que le tomaron el su sello e fizieron aquellas cartas que quisieron e las sellaron.
El 8 de agosto de 1304, en la villa zaragozana de Torrellas, el rey Dionisio I de Portugal, el arzobispo de Zaragoza, Jimeno de Luna, en representación de la Corona de Aragón, y el infante Juan de Castilla “el de Tarifa”, representando a la Corona de Castilla, hicieron públicas las cláusulas de la Sentencia Arbitral de Torrellas. A Alfonso de la Cerda, apoyado por Jaime II de Aragón, le fueron concedidos como compensación por su renuncia al trono de Castilla una serie de señoríos y posesiones, entre los que figuraban el Real de Manzanares. No obstante, la donación no fue ejecutada y sí devuelta a Segovia por Real Ejecutoria de Fernando IV, dada en Valladolid, el 2 de abril de 1312. En esta carta plomada, atendiendo a las demandas del Concejo segoviano, el monarca reconocía que le requisó el sexmo de Manzanares para donarlo a don Alfonso de la Cerda. Ahora, durante la celebración de las Cortes vallisoletanas de ese año de 1312 y, ante las reclamaciones de la ciudad perjudicada, el rey “por salir de pecado” entregó el codiciado término a Segovia (González Crespo, 2010: 258).
En 1337, Alfonso XI hizo donación del Real a don Juan de la Cerda. Con este noble, que también formaba parte de la familia real, aunque su grado de parentesco no fuera muy cercano, se inicia la fase de señorialización del Real de Manzanares. El nuevo tenente, para redondear y ampliar sus dominios onubenses, cambiaría en el año 1346 el señorío de Manzanares por el de Huelva con doña Leonor de Guzmán, amante del rey Alfonso XI y madre del primero de los reyes de la dinastía Trastámara. Precisamente en ese año, el 4 de septiembre de 1346, se hace mención al primer edificio destacado en Manzanares, porque en carta abierta de Alfonso XI encarga al Concejo de Madrid que envíe a Manzanares, hacia donde él se dirige, todos los maestros carpinteros que se encontrasen en la villa para reparar los palacios de la misma, a los que se pagaría un maravedí por jornal (Archivo de la Villa, signatura 2-158-13; Pérez Chozas et al., 1932: 35-36, Cayetano Martín, 1991: 38; Amador de los Ríos, 1861; Millares Carlo y Varela Hervías, 1932: 35-36; Pozuelo Ruano, 2021: 88) (Figura 3.):
Sepades que nos ymos de camino para Manzanares et tenemos por bien que todos los maestros carpenteros que y ouier que se vayan para Mançanares para que adoben los palacios que y están en que posemos. Por que uos mandamos que luego vista esta nuestra carta, syn otro detenimiento ninguno, enbiedes todos los maestros carpenteros que ouier y en la dicha Villa al dicho lugar de Mançanares, para que adoben los dichos palacios, como dicho es, ca en quanto y andovieren labrando, nos les mandaremos pagar por cada día su jornal.

Figura 3. Carta abierta de Alfonso XI encargando al Concejo de Madrid envíe unos carpinteros a reparar el palacio de Manzanares, 1346. Archivo de Villa, n.º 2-158-13. Imagen: https://www.memoriademadrid.es/buscador.php?accion=VerFicha&id=315613&num_id=1&num_total=244&voto=5
El rey D. Juan I hizo donación del Real a su ayo y mayordomo mayor D. Pedro González de Mendoza, en el año 1383, para que hiciera mayorazgo de él, con lo que empieza la posesión del Real por la casa Mendoza. Tomó parte en la adversa batalla de Aljubarrota (1385), en la que dio su caballo al rey para que huyera, volviendo él a la contienda, donde murió heroicamente. Un año después, se crearía el mayorazgo del señorío, título confirmado en su hijo, Diego Hurtado de Mendoza, almirante de la flota castellana. Es probable que el palacio fuera el lugar donde guardar con seguridad el cobro de los impuestos de pontazgo que se recaudaban a los ganados, viajeros y mercaderes que cruzaban el puente a su paso por la Cañada Real Segoviana en el Real de Manzanares.
Los documentos del Archivo de la Casa Ducal de Infantado (ARCM ES28079 203.01.01.01.000265172/0002) describen el enfrentamiento por la posesión del Real de Manzanares entre Aldonza de Mendoza y su hermanastro Iñigo López de Mendoza, hijos de Diego Hurtado de Mendoza. Se mencionan de nuevo explícitamente los palacios (Pozuelo Ruano, 2021):
En los Palacios que son azerca de la Villa de Manzanares Jueves diez días de el mes de Septiembre del año del nascimiento de nuestro señor Jesucristo de mili y quatrozientos y cinco años, este dia dentro en los dichos Palacios estando y Da Aldonza de Mendoza Condesa de Trastamara Muger de el Conde D. Fadrique e en presencia de nos el notario y escrivano de yuso contenidos, y Testigos yuso escritos parescio y un escudero que se dijo por nombre Gonzalo Gutierres criado de Da Leonor de la Vega y presento y faso leer....
...de Juan Furtado de Mendoza y de Diego Lopez de Medrano tutores otrosi que son del dicho Yñigo Lopez vos digo que me fue fecho entender y es cierto y quasi notorio en como vos de fecho y contra derecho que venistes con gente de Armas por fuerza tomar y entrar la posesion de el Real de Mançanares el qual dicho Real y Villa con toda su tierra es de el dicho Yñigo Lopez buestro Hermano y non buestro, y perteneze a el y no a vos asi por derecho de maiorazgo como por el testamento y codicillo que el dicho Almirante...
En 1423, después de un secuestro del Real por parte del rey, los hermanos llegan a un acuerdo y toman conjuntamente posesión del Real de Manzanares:
En la Villa de Mançanares en veinte e dos dias del mes de Jullyo año del nasçimiento del nuestro salvador jesucristo de mill e quatroçientos e veynte e tres años este dicho dia en el portal de la iglesia de Santa Maria de la dicha Villa estando ayuntados a pueblo el conejo y Alcaldes e Alguasiles e ornes buenos de la dicha Villa de Mançanares e de toda su Tierra llamados por canpana tañida...
...E despues desto a poner de ora este dicho dia en los dichos veynte e dos dias del dicho mes de Julio del sobre dicho año suso dicho de mill e quatroçientos e veynte e tres años los dichos señores Condesa e Yñigo Lopes de Mendoza su hermano fijos del dicho señor Almirante fueron a los Palaçios que fueron del dicho señor Almirante su padre que son e estan cerca de la dicha Villa de Mançanares allende de la puente de la dicha villa e en presencia de nos los dichos escrivanos e testigos de yuso escriptos luego los dichos señores entraron dentro en los dichos Palaços e dixeron que ellos con entençion e voluntad de adquirir e ganar e tomar la posesion de los dichos palaçios e ambos dellos de todas las otras cosas heredades e palaçios e huertas e prados e pastos arboles vides aguas corrientes estantes manantes desde la foja al monte fasta la piedra del rio e desde la piedra del rio fasta la foja del monte que ellos avian en la dicha villa e tierra e Real sin las dichas Porquerisas e Guadalix que avian estado e estaron en ellos e en señal e para ganar la dicha posesion amos a dos echaron mano por las puertas de los dichos Palaçios e cerraronlas e luego a por mor de ora los dichos señores amos juntamente abrieron las dichas puertas dellos e asi dixeron que finavan e finaron en la posesion dellos...
Para entonces el Real de Manzanares se había constituido progresivamente en un señorío bien definido y unificado, frecuentado por los reyes en sus cacerías serranas e identificado con la casa de los Mendoza, convertidos sus integrantes en fieles servidores de los monarcas del momento, Enrique III y Juan II. A partir de dicha relación se entiende que este último creara en 1445 el condado del Real de Manzanares y el marquesado de las Asturias de Santillana, y que ambos títulos se los concediera a don Íñigo López de Mendoza, al tiempo que poco después recibía los lugares de Huelma, Miralcampo, Meco y la villa de Saldaña (López González, 1977: 50-51).
En cuanto a la cronología de la fortificación del antiguo palacio, quizá sea más lógico pensar que una obra de aquella entidad no comenzara a levantarse sino a partir del momento en el que la familia Mendoza tuviera plena propiedad del Real de Manzanares. La temprana muerte de don Diego Hurtado de Mendoza en 1404 y los problemas inmediatos derivados de la posesión de su herencia, nos permite suponer que tales obras pudieran empezar a partir de 1435, cuando fue levantado el secuestro regio del señorío. E incluso se pueda retrasar algo más ese momento a partir de 1445, cuando se instituyó el marquesado de Santillana en la persona de Íñigo López de Mendoza (1398-1458), quien se sabe fue artífice de reformas en varias de sus posesiones serranas y alcarreñas, entre otras obras en el castillo de Buitrago, en el castillo y murallas de Hita, así como en sus casas mayores de Guadalajara. No sería, por tanto, descabellado considerar al primer marqués de Santillana el artífice del “castillo viejo” de Manzanares.
Es probable que don Íñigo López de Mendoza pudiera acometer las defensas del antiguo palacio entre 1435 y 1458. En ese momento tenía la influencia política, el poder económico y militar, el impulso edilicio, así como la estabilidad suficiente de sus señoríos serranos como para definitivamente emprender en Manzanares la reforma que supone la defensa de los viejos “palacios” que reiteradamente aparecen en las fuentes. Además, los modelos de la arquitectura fortificada en boga en los últimos años del reinado de Juan II y en el de Enrique IV coinciden plenamente con las trazas de Manzanares “el viejo”, de modo que se puede identificar la coyuntura histórica más idónea para que tuviera lugar aquella empresa. Otros datos documentales vendrían a sostener esta hipótesis y a confirmar que por entonces Manzanares debía de contar con una residencia relevante, ocupada esporádicamente por el futuro marqués de Santillana. Uno de ellos data de 1441, cuando Antón Çorita traduce y copia L'Arbre des Batailles, de Honorat Bovet, en Manzanares, con destino a la biblioteca del marqués, quien reside en las casas mayores de Guadalajara. Antón Çorita tradujo y realizó tres copias de aquella famosa obra, de las cuales don Íñigo conservó dos, además del original francés del que salieron. En las conservadas en la Biblioteca Nacional de Madrid (mss. 202 y 10.203), dedicadas a “Enyego Lopes de Mendoça”, lo que se dice simplemente es que fueron escritas en Manzanares. Aunque algunos autores hayan interpretado que se trataba del “castillo viejo” (López González, 1977: 49; Gómez Osuna, 2005: 273), ambos manuscritos nada especifican al respecto, por lo que pudiera ser que el trabajo de Zorita se desarrollase todavía en aquellos palacios y no en un castillo que no sabemos si estaba terminado en ese momento.
La otra noticia cronística se refiere a la residencia en Manzanares de doña Mencía de Lemos, dama de la reina Juana, esposa de Enrique IV. Ella era amante del cardenal Pedro González de Mendoza, que era a su vez hermano del heredero del marquesado, Diego Hurtado de Mendoza, y residiría en Manzanares entre 1462 y 1467 aproximadamente (López González, 1977: 63; Gómez Osuna, 2005: 274). Por aquel entonces don Íñigo se encargaba de construir el convento de San Francisco de Guadalajara, el castillo y la muralla de Hita, y estaba reformando el castillo de Buitrago, lo que ha llevado a algunos autores a descartar de plano que a la vez se ocupara de levantar un castillo en Manzanares (López González, 1977: 49), sin embargo, una actuación paralela en Manzanares es del todo compatible con el impulso constructivo que precisamente en esos años centrales del siglo XV estaba protagonizando el Mendoza.
Según este planteamiento, las obras del recinto amurallado del antiguo palacio se iniciaron a mediados del siglo XV, pero pronto comenzaría la edificación del nuevo, cuya construcción ya está en marcha en 1475, según el testamento de su promotor inicial, Diego Hurtado de Mendoza y de la Vega (m. 1479), hijo del marqués de Santillana y de Catalina Suárez de Figueroa, II marqués de Santillana y primer duque del Infantado. En aquel documento el noble donaba 7.000 maravedíes de juro “a la iglesia de Santa María de la Nava, que está cabe el castillo que yo fago en la mi villa de Manzanares”, y no cabe duda de que en este caso ya habla de la nueva fortaleza.
El “castillo viejo”, denominado “los palacios”, debió de quedar en manos de los duques hasta 1528 (Pozuelo Ruano, 2021: 96). El 14 de abril de ese año, Diego Hurtado de Mendoza “hizo merced por una honra” a Diego Hurtado, su camarero, de un sitio y palomar en la Fortaleza Vieja. Y este camarero posteriormente lo vendió a un vecino de Manzanares citándolo como Los Palacios Viexos (AHN, NOBLEZA, OSUNA, caja 1693, 32, 1-2).
...el 31 de Julio de 1536 vendio a Juan Hernandez de El Real, vecino de Manzanares un Palomar con su herren y cercado que tenia en dicha villa y se decia Los Palacios Viexos, que es cerca de la Hermita de San Silbestre, que poseya por mereced que le hizo el Duque D. Diego, por precio y quantia de un jarro de plata y mas quatro ducados, y por un conocimiento que le quedo a pagar.
En 19 de Abril de 1540 el comprador pidió licencia al Ayuntamiento de Manzanares para hazer un sitio de palomar junto a los Palacios para hazerlo de cubo a cubo y se la dio y concedió.
Y en este sitio de cubo a cubo tiene D. Gregorio Páez, un herrén el que siembra oy.
A tenor de la información proporcionada, “los palacios” debe de corresponder a la antigua edificación situada donde actualmente se halla el Castillo Viejo, cuya cronología se remonta por lo menos a 1346 (aunque debe de ser anterior a esa fecha, porque en ese momento se repara), y se mantiene en uso, según las fuentes escritas, durante el año 1423. Es muy posible que, a mediados del siglo XV, se emprendiera la construcción de sus defensas, que adquieren el modelo en boga de los castillos del periodo, cuyo mayor exponente son la generación de los castillos de la Escuela de Valladolid (Cobos Guerra y Retuerce Velasco, 2011). Aunque no sabemos con certeza cuándo se abandonó e inutilizó, la construcción del nuevo castillo en marcha en 1475 debe de marcar el final de su uso, aunque no hay que pensar en una desocupación inmediata del “castillo viejo”, pues en ese año el castillo nuevo está todavía en construcción. Sea como sea, a mediados del siglo XVI ya no cumple la función de residencia, sino de campo de labranza y se menciona la construcción de un palomar junto a los palacios, que va de cubo a cubo. Seguirá en manos privadas como finca de cultivo de secano hasta su abandono y la posterior compra del Ayuntamiento de Manzanares El Real.
Con la financiación del Área de Protección del Patrimonio Cultural de la Comunidad de Madrid, se ponen en marcha los trabajos previos sobre el Castillo Viejo. Las prospecciones geofísicas, realizadas por el CAI de Arqueometría de la Universidad Complutense de Madrid en septiembre de 2020, con Javier Vallés Iriso e Irene Ortiz Nieto al frente, cubrieron una superficie de 15.600 m². Los resultados obtenidos tras su análisis indican en el espacio interior de la fortaleza estructuras de edificaciones que seguramente están en relación con la misma, ya que presentaban la misma orientación que los muros perimetrales (Figura 4.). Se localizaron entre los 20 y 60 cm de profundidad media. Se trata en líneas generales de tres flancos (norte, oeste y sur) ocupados por estructuras en forma de U con unas dimensiones de unos 9 m de anchura y 37 m de longitud del lateral del castillo. Se configura así un patio interno abierto hacia el sur donde se encuentra el acceso de la fortificación. También se localizó un edificio muy superficial cuyos restos llegan a aflorar en la zona sur y que presenta una orientación diferente. Con toda esa información se elaboró un mapa de la disposición, tamaño y forma de los diferentes datos e hipótesis. En el año 2020 se llevó a cabo un desbroce, en torno a 25-30 cm, mecánico y manual, del interior y del exterior inmediato al recinto del castillo, con el objetivo de preparar el terreno para los estudios geofísicos y el levantamiento planimétrico de los restos de la fortaleza. Se descubrió en el transcurso de los trabajos un relleno moderno y contemporáneo para el uso del lugar como espacio de cultivo, con una potencia entre 15 y 30 cm.

Figura 4. Planimetría de las prospecciones geofísicas realizadas en el Castillo Viejo de Manzanares El Real realizadas por el CAI de Arqueometría de la Universidad Complutense de Madrid en septiembre de 2020. Imagen: CAI-UCM.
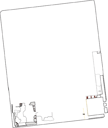
Los resultados de las cuatro primeras campañas de excavación nos permiten ofrecer una primera lectura sobre la evolución del denominado Castillo Viejo de Manzanares El Real diferenciando cinco fases aún en estudio que tratamos de explicar a continuación (Figura 5.).

Figura 5. Planta general del yacimiento después de la campaña de 2024. Imagen: equipo arqueológico del Castillo Viejo de Manzanares El Real.
La primera fase corresponde al palacio citado en el documento de época de Alfonso XI cuando en 1346 estaba ocupado y se manda reparar. A este primer momento corresponde ya un edificio de grandes dimensiones que ocupa prácticamente todo el interior de la zona fortificada, es decir, aproximadamente 43 x 35 m (c. 1505 m2) (Figura 6.).

Figura 6. Planta de las estructuras de la Fase 1 con dos estancias excavadas en las esquinas suroeste y sureste. Imagen: equipo arqueológico del Castillo Viejo de Manzanares El Real.
Desde antes de la primera campaña de excavaciones arqueológicas en 2021 se tiene constancia de una separación entre las estructuras internas de la fortaleza y el lienzo defensivo de unos 20 o 25 cm de anchura que recorre todo el perímetro del castillo (Figura 7.). Este espacio, que sirve a modo de cámara bufa o de aire, se podría explicar por la búsqueda de aislamiento térmico o de humedad, pero en términos estratigráficos nos informa sobre la construcción del palacio de la primera fase, diferenciada de las defensas construidas en la segunda fase.

Figura 7. Esquina suroeste del yacimiento visto donde se aprecia el espacio de separación entre los muros de tapial apoyados sobre ladrillos del palacio y las defensas. Imagen: equipo arqueológico del Castillo Viejo de Manzanares El Real.
La excavación del flanco sur de la fortaleza nos ha permitido localizar cuatro estancias cuadrangulares que miden aproximadamente 9 x 9 m. El granero de la Fase 4 nos impide excavar en su totalidad las dos estancias centrales. Sin embargo, conocemos bien en planta las estancias sureste y suroeste, que responden al mismo módulo y técnicas constructivas. Los muros externos del palacio corresponden sin duda a esta Fase 1, pero menos datos tenemos de la organización interna. Aunque no se puede confirmar que las estructuras interiores localizadas se pueden fechar con seguridad en este periodo, el hecho de que la cara exterior de los muros presente la decoración esgrafiada y los muros externos traben perfectamente con los internos nos permite plantear a modo de hipótesis que estas primeras salas responden a la organización interna del primer palacio. Además, la técnica constructiva de tapial apoyada sobre ladrillos y estos sobre piedras responde al método empleado en las construcciones de este periodo (Mileto et al., 2013).
La estancia suroeste (US 121000), excavada en la campaña de 2022, presenta unas dimensiones de 9 x 9 m (Figura 7.). Aparece rellena con depósitos de tierra con cascotes y zonas donde aparecen lienzos de muro colapsados en el interior. No se ha llegado a la altura de los suelos de uso de la estancia por lo que no se conoce la potencia total o la funcionalidad de la estancia. Los muros, descritos en la Tabla 1., están construidos a nivel general con tapial que descansa sobre una base de dos hiladas de caja de ladrillos y relleno de lechadas de mortero.
Tabla 1. Tabla descriptiva de las UUEE y UUEEMM. Autoría: equipo arqueológico del Castillo Viejo de Manzanares El Real
Unidad Estratigráfica (UE) o Superficial (US) |
Unidad Estratigráfica Muraria (UEM) |
Descripción |
Figura |
Estancia suroeste US 121000 |
El cierre sur de la estancia: UEM 121200 |
Dimensiones: 9 m de longitud y 1,17 m de anchura. Muro de tapial del que se conserva la impronta de capas de tierra alternas con capas de mortero de 1,10 m de altura. La base de esta estructura está constituida por un muro formado por dos hiladas de caja de ladrillos y relleno de lechadas de mortero y capas de tierra, restos de ladrillos y piedras pequeñas. Al exterior en la base del muro presenta restos de probable decoración esgrafiada con yeso. En la esquina sureste cuenta con un machón de ladrillo y argamasa que confiere dureza al muro. |
|
El cierre este de la estancia: UEM 121300 |
Formado por dos tramos de muro con un vano entre ellos. El tramo sur de 3,60 m de longitud se une al muro sur de la estancia. Se construye con caja lateral de ladrillos y rellenos, y presenta una fila de ladrillos que tienen un hueco de 7 x 6 cm debajo que podrían corresponder con la estructura de los cajones de madera instalados para su construcción encofrada y para unir las caras exteriores del lienzo. Se remata al norte con un machón de ladrillo y mortero de cal de 1,10 m de anchura y 0,62 m de grosor que conserva una altura visible de 43 cm. El vano de acceso a la estancia tiene 1,62 m de luz y la anchura del muro. El tramo norte no se ha definido totalmente en su anchura, aunque se presupone una similar al tramo sur. Tiene 2,67 m de longitud y está construido de forma similar al tramo sur. |
||
El cierre oeste de la estancia: UEM 121400 |
Presenta técnicas constructivas similares a las de los otros muros. Anchura: 0,45-0,50 m. |
||
El cierre norte: UEM 121100 |
Conserva 0,80 m de longitud y 1,17 m de anchura. Presenta restos de lechada de mortero de cal hacia el este y derrumbes hacia el oeste. A partir del machón el muro se construye con tapial y tiene la cara sur enlucida con mortero de cal, no apreciándose claramente su cara norte a esa cota. Presenta 3 metros de longitud en esta zona. |
||
Estancia sureste US 124000 |
Cierre sur: UEM 124200 |
Dimensiones: 6,60 m de longitud y 1,10 m de anchura. Consiste en un muro de mampostería de granito con mortero de cal y arena y encima dos hiladas de ladrillo a ambas caras. Al interior presenta un enlucido de entre 1 y 2 cm de mortero de cal. Al exterior tiene un revoco de mortero de cal con decoración esgrafiada de círculos. |
|
Cierre este: UE 124300 |
Dimensiones: 7,30 m de longitud y 1,10 m de anchura. Es muy relevante la decoración exterior de los muros realizada con la técnica del esgrafiado con cal y arena sobre la mampostería de granito. La esquina suroeste fue desmantelada, posiblemente cuando se construye la defensa exterior. |
||
Cierre oeste: UE 124400 |
Parcialmente excavado, presenta una base de una hilada de mampostería de 15-20 cm de altura y encima dos hiladas de ladrillo con mortero de cal que suman 12 cm (5 cm anchura del ladrillo y 2 cm de llaga de mortero). Sobre estas hiladas de ladrillos conserva un tramo de tapial que no conserva revocos o enlucidos. |
||
Cierre norte: UE 124100 |
Presenta una hilada inferior de mampostería de granito de bloques grandes de 43 x 22 cm o dos niveles de piedras de 20 x 10 cm. Encima una hilada de 6-8 cm de regularización con fragmentos de tejas y algún fragmento pequeño de ladrillo y encima dos hiladas de ladrillo de 5 cm de grosor unidos con mortero de cal con una llaga de 3-4 cm hasta un total de 14-15 cm de verdugada. Estas hiladas configuran la base de posibles cajones de aproximadamente 1,20 x 1 m que marcan el encofrado de los tramos de muro de tapial. En la parte superior pueden verse hasta tres filas de ladrillo horizontales y alguno vertical, que atan ambas caras del muro y son parte de la estructura de encajonado del tapial que seguramente tuvo instalado encima. También se han conservado líneas de corte en el mortero de cal de 7-8 cm de anchura correspondientes a las agujas del encofrado del tapial. |
||
Estancia en la crujía este, al sur de la puerta de la fortaleza US 130000 |
En su muro este, de 7,3 m de longitud y 1,10 m de anchura, se aprecia muy bien la técnica constructiva, con hiladas inferiores de mampostería de piedras medianas (20 x 19 x 17 cm) y grandes (37 x 29 x 30 cm). Encima una hilada de 6-8 cm de regularización con fragmentos de tejas y algún fragmento pequeño de ladrillo y encima la impronta de una hilada de ladrillos de 30 x 15 cm de módulo. |
Las esquinas están reforzadas con un machón de ladrillo y argamasa que confiere dureza a los muros (Figuras 8-10). Las caras exteriores de las fachadas principales (sur y oeste) estaban decoradas con la técnica del esgrafiado.

Figura 8. Vista aérea de la esquina suroeste del yacimiento. Imagen: equipo arqueológico del Castillo Viejo de Manzanares El Real.

Figura 9. Esquina suroeste vista desde el oeste, donde se aprecia el espacio de separación entre muros internos y defensas externas (abajo), el machón de ladrillo (derecha) y algunos muros de tapial conservados y base de ladrillos. Imagen: equipo arqueológico del Castillo Viejo de Manzanares El Real.

Figura 10. Cierre este de la estancia (UEM 121300) formado por dos tramos de muro con un vano entre ellos. Imagen: equipo arqueológico del Castillo Viejo de Manzanares El Real.
En el flanco sur de la fortaleza, como hemos dicho anteriormente, se localizan dos estancias más que no se pueden excavar porque el granero de la Fase 4 se apoya sobre los derrumbes y muros de tapial. De estas estancias centrales, la situada más al oeste presenta unas dimensiones de 8,10 x 8,90 mcon una superficie de 72,09 m2.
La estancia sureste (US 124000), excavada en planta, presenta técnicas constructivas similares a la situada en la esquina suroeste. En líneas generales, los muros cuentan con una hilada inferior de mampostería de granito de bloques grandes. Sobre esta, se dispone una hilada de regularización con fragmentos de tejas y algún fragmento pequeño de ladrillo y encima dos hiladas de ladrillo. Estas hiladas configuran la base de posibles cajones de aproximadamente 1,20 x 1 m que marcan el encofrado de los tramos de muro de tapial. También se han conservado líneas de corte en el mortero de cal de 7-8 cm de anchura correspondientes a las agujas del encofrado del tapial. El muro sur y este presentan en su exterior decoración en esgrafiado de estilo segoviano formado por círculos y estrellas de once puntas que analizaremos en detalle en el siguiente apartado. (Figuras 11-13).

Figura 11. Vista cenital del área de excavación de la campaña de 2024 donde se aprecia la estancia sureste. Imagen: equipo arqueológico del Castillo Viejo de Manzanares El Real.

Figura 12. Estancia sureste vista desde la esquina suroriental. Imagen: equipo arqueológico del Castillo Viejo de Manzanares El Real.

Figura 13. Muro de cierre norte de la estancia sureste. Imagen: equipo arqueológico del Castillo Viejo de Manzanares El Real.
En la campaña de 2024 la estancia se excavó el interior sin llegar a su cota final (UE 124011) (Figura 14.). En el interior se localizaron planchas de revoco de pared que muestran en la trasera las improntas de las tongadas de mortero y tierra que forman parte de la estructura muraria de tapial. Se localizó además un dinero de Fernando IV, de la ceca Coruña (marca venera), fechado entre 1295 y 1312 (Figura 15.).

Figura 14. Interior de la estancia sureste. Imagen: equipo arqueológico del Castillo Viejo de Manzanares El Real.

Figura 15. Dinero de Fernando IV, de la ceca Coruña (marca venera), fechado entre 1295 y 1312 procedente de la estancia sureste. Imagen: SECYR.
En el año 2024 se excavó parcialmente otra estancia de la crujía este, al sur de la puerta (US 130000). En su muro este, de 7,3 m de longitud y 1,10 m de anchura, se aprecia muy bien la técnica constructiva, con hiladas inferiores de mampostería de piedras medianas (20 x 19 x 17 cm) y grandes (37 x 29 x 30 cm). Encima una hilada de 6-8 cm de regularización con fragmentos de tejas y algún fragmento pequeño de ladrillo y encima la impronta de una hilada de ladrillos de 30 x 15 cm de módulo.
A partir del registro arqueológico, se aprecia una técnica constructiva que supone la construcción de una base de piedras de granito sobre el que se asientan varias hiladas de ladrillo que aíslan el muro del suelo. Sobre esta base se levanta un muro de tapial construido a base de cajones de madera. La taxonomía constructivo-tipológica, según la propuesta de Gil-Crespo y Maldonado-Ramos (2015), corresponde al tipo TA2 (tierra con tongadas de cal), TB1 (con material dentro del encofrado y compactado con un pisón), la fábrica de tapia es principal (TC1), con encofrado entre machones (TD3), acabado calcostrado (TE1) y material único (TF1). Son características propias de la construcción de los siglos XIV-XV.
En cuanto a los enlucidos que evitaban el deterioro de los muros de tapial, se han localizado restos tanto en el interior de la fortaleza como de forma residual y debajo del suelo de la torre del homenaje. Se caracterizan por presentar una gran compacidad, gracias a una alta proporción de cal que también les da un color blanquecino. Algunos presentan líneas en rojo sobre el blanco del mortero, que remiten en cierto modo a los escasos restos localizados en construcciones del siglo XIII-XIV como Casa de Argila en Segovia (Ruiz Alonso, 2019: 158, figura 173) y se asemejan a la tradición de las pinturas halladas en los primeros esgrafiados procedentes del yacimiento de Madinat Ilbira (Granada) en los que se aprecia el uso de vaciadores fechados entre el X y el XI (Ruiz Alonso, 2015: 83, figura 61).
En la cara exterior de la fachada sur del antiguo palacio del siglo XIV y también en la fachada oriental hemos podido documentar motivos decorativos realizados a base de esgrafiado de estilo segoviano. Se ha podido conservar gracias a que, cuando se adhiere el lienzo defensivo del siglo XV, este esgrafiado quedó alojado entre el muro de la fachada del XIV y la defensa del XV, formando una especie de cámara bufa o de aire que recorre perimetralmente todo el edificio en los cuatro flancos (Figura 16.). Aunque se ha documentado en la fachada meridional y oriental, es muy probable que fuera decorado en los cuatro lados.

Figura 16. Localización del esgrafiado en la campaña de 2023. Imagen: equipo arqueológico del Castillo Viejo de Manzanares El Real.
La ubicación emparedada de los esgrafiados no permite contemplarlo con claridad, pero se aprecia mejor en el paramento occidental orientado hacia la torre del homenaje. El hecho de que el muro fuera expoliado en esta zona ha permitido su documentación, no sin dificultades, para su fotografiado, dibujo y estudio. El estado del esgrafiado sugiere cierto desgaste, pero aún es posible apreciar la habilidad técnica y la precisión del diseño original. La técnica consiste en aplicar varias capas de mortero que permite la creación de una gran variedad de diseños, desde figuras geométricas sencillas hasta patrones más complejos con influencias mudéjares y renacentistas. Todos ellos se confeccionan extendiendo sobre el muro o sobre una superficie preparatoria una o varias capas de mortero (“tendidos”) (cf. Ruiz Alonso y González Herrero, 2017: 72). Se emplean generalmente dos capas de mortero superpuestas, del mismo o de distinto color, recibiendo la última un acabado liso por acción de la llana. Una vez que este tendido postrero ha alcanzado un cierto grado de consistencia, se procede a marcar los diseños ornamentales con un instrumento de punta afilada; a continuación, se perfilan las siluetas de nuevo, esta vez a través de un corte a bisel que atraviesa el espesor de toda la capa hasta alcanzar el primer tendido. Para dejar la decoración en relieve, se procede por último al escarbado de las zonas que permanecen en profundidad, descubriendo la superficie del tendido de fondo. El resultado es un trabajo ornamental en dos planos conectados por pequeñas superficies en chaflán, lo mismo que en el encintado. Su constitución es menos resistente que otros materiales de construcción como la piedra o el ladrillo, pero son económicos, ligeros, duraderos y de fácil aplicación, de ahí que los revoques hayan sido siempre una alternativa importante al revestimiento pétreo (Ruiz Alonso, 2017: 65).
El esgrafiado conservado en esta fachada occidental corresponde a un lienzo conservado de aproximadamente 2,20 de longitud y 1,10 m de altura, que cuenta con una alineación de tres circunferencias en la parte superior yuxtapuestas (Figuras 17 y 18). Debajo de estas, separadas por una línea de tres ladrillos, encontramos un friso corrido dividido en dos alienaciones de tres circunferencias y una estrella de once puntas inscrita en un círculo en la parte superior de sur a norte, y otra alineación inversa con una estrella de once puntas inscrita en un círculo y tres circunferencias de sur a norte en la parte inferior. Cada una tiene un diámetro aproximado de 40 cm.

Figura 17. Esgrafiado de estilo segoviano en la fachada oriental del palacio del siglo XIV. Imagen: equipo arqueológico del Castillo Viejo de Manzanares El Real.

Figura 18. Dibujo del esgrafiado de la fachada oriental del palacio del siglo XIV. Imagen: equipo arqueológico del Castillo Viejo de Manzanares El Real.
Este esgrafiado representa un diseño decorativo tradicional de la arquitectura de Segovia y su entorno, caracterizado por patrones geométricos curvilíneos y motivos abstractos tallados en la superficie de la pared (Figura 19.). Estas formas semicirculares repetidas forman una secuencia continua de arcos interconectados, generando un ritmo visual de armonía y equilibrio. El relieve no es profundo, pero presenta una técnica que resalta los contornos de las formas curvas.

Figura 19. Esgrafiados de Segovia y entorno con motivos circulares: Torreón de Lozoya (arriba, izquierda), castillo de Pedraza (abajo, izquierda) y Alcázar de Segovia (derecha). Fotografías: Ruiz Alonso 2019: figs. 130, 131 y 134.
La antigüedad del esgrafiado del Castillo Viejo de Manzanares El Real se ve reflejada en la inclusión de estrellas de once puntas, no documentadas en la ciudad de Segovia y su entorno. Además, se presentan solamente motivos geométricos repetitivos a base de circunferencias, pero no se combinan con elementos florales o vegetales, ni mucho menos representaciones figurativas, como animales o figuras humanas estilizadas. El motivo decorativo está presidido, por tanto, por una geométrica simplicidad.
En el esgrafiado del Castillo Viejo de Manzanares El Real ya está presente la intencionalidad de ordenar el conjunto alineando las circunferencias en horizontal y en vertical, siguiendo la tradición de las circunferencias segovianas que se sujetan a una imaginaria trama de cuadrados, de modo que estas quedan alineadas en horizontal y en vertical, con la particularidad de que todas las unidades son tangentes.
El empleo de circunferencias se distingue en un lienzo del castillo de Pedraza (Segovia) formado por mampostería adornada con rondos en relieve con tamaños muy diferentes, realizados a mano alzada, de modo que tienden a disponerse a tresbolillo (cf. Ruiz Alonso, 2019: 128), una técnica diferente a la constatada en la ciudad de Segovia y también distinta a la del “castillo viejo” de Manzanares El Real. El esgrafiado madrileño se asemeja a los documentados en el Torreón de Lozoya, cuya cronología es discutida (cf. Ruiz Alonso, 2017: 66), pero que el marqués de Lozoya (1921), Juan de Vera y Albertos Redondo (1911: 27), Ceballos-Escalera y Gila (1991: 7), Pérez Higuera (1993: 115) y López Guzmán (2005: 183) fechan a comienzos del siglo XIV. Su origen puede hallarse en el resalto de yeso que marca las junturas de las piedras en las obras de mampostería o sillarejo. Así se documenta también en la denominada torre de Juan II del Alcázar de Segovia adornada con circunferencias irregulares y de cronología desconocida (Ruiz Alonso, 2019: 129). El uso de los círculos como elemento decorativo está presente también en la torre del homenaje del castillo de Arcos de Jalón (Soria), donde el decorador hizo uso del compás para el trazado de las circunferencias, buscando en su disposición una cierta correspondencia con el tamaño y ubicación de las piedras. La disparidad de estas redundó en un efecto de desorden, habiéndose empleado tantos radios diferentes que muchos anillos no llegan a tocarse, ocupándose los espacios vacíos con líneas rectas o formas almendradas. También está presente esta decoración en la gran fachada sur del castillo de Cuéllar donde se revocó completamente el muro, configurando una base continua que no dejaba ver su fábrica (Ruiz Alonso y González Herrero, 2017: 80). La ordenación de circunferencias de igual o diferente diámetro, tangentes y superpuestas se contempla también en el Alcázar del siglo XV (cf. Ruiz Alonso, 2014: 150-151). La ornamentación esgrafiada de los anillos regulares, dispuestos reticularmente, se documenta por primera vez en el castillo de Arroyomolinos (Madrid), de finales del siglo XV, probablemente levantada por Gonzalo Chacón, secretario de los Reyes Católicos (López Guzmán, 2005: 183) y también ordenados y de igual tamaño sobre las albardillas piramidales que coronan los merlones de la torre del castillo de Nogales (Badajoz).
Es interesante destacar que este motivo de embellecimiento de la arquitectura, que combina elementos geométricos para aportar distinción a las construcciones, se repite después en el muro defensivo del siglo XV de Manzanares El Real, como se ha podido comprobar en el sondeo sur de la torre del homenaje, donde los círculos conservados remiten a este diseño ornamental a través de la superposición de capas de mortero. Conviene recordar, en este sentido, que los esgrafiados tienen una influencia islámica, pero en Segovia se adaptaron y evolucionaron, integrando elementos renacentistas y cristianos. Durante los siglos XV y XVI, su uso se generalizó en muchas casas y palacetes de la ciudad, dotando a Segovia de su aspecto distintivo, donde los patrones geométricos y vegetales decoran los muros. No hay que olvidar tampoco su aplicación práctica, ya que protegían las fachadas de las inclemencias del tiempo, como la lluvia o el frío.
El problema que nos encontramos en cuanto a la cronología del esgrafiado de Manzanares El Real es la discutida atribución del esgrafiado estilo segoviano en el siglo XIV, pues el mayor especialista en la materia, Ruiz Alonso (2019: 127-135) considera que debe fecharse en el siglo XV, aunque con dudas sobre la decoración a base de circunferencias del Torreón de Lozoya, datada en el siglo XIV. La decoración de Manzanares El Real se asemeja a la obra del castillo de Pedraza (Segovia), pero no se dispone a tresbolillo, siendo su paralelo más próximo a nivel técnico y decorativo, la decoración a base de circunferencias irregulares del Torreón de Lozoya (Segovia). Al igual que en esta, también en Manzanares El Real el revestimiento, antes de la realización de las circunferencias irregulares, fue precedido por un revoco que llegó a ocultar la superficie pétrea. Su acabado también es muy basto, realizado con rudos movimientos de paleta, mientras que las circunferencias fueron pulimentadas cuidadosamente (cf. Ruiz Alonso, 2019: 132-133).
Así pues, desde el punto de vista técnico y decorativo, encontramos motivos del siglo XIV muy semejantes, si es que el Torreón de Lozoya (Segovia) se puede fechar en este periodo. Pero en el caso de Manzanares El Real contamos con datos estratigráficos que permiten fecharlo en esta centuria. La construcción inicial del palacio, fechada por documentación escrita en la primera mitad del siglo XIV, dispondría de esta decoración para ser vista y quedó oculta, a unos 20-25 cm del encintando defensivo posterior, que debe fecharse, por criterios tipológicos y por documentación escrita, ya en el siglo XV.
Aunque las estructuras interiores presentan la decoración exterior esgrafiada del palacio del periodo 1, no podemos determinar por el momento si estas sufrieron reformas o algunas fueron construidas exprofeso en el periodo 2. Más evidente resulta fechar en este periodo 2 las fortificaciones exteriores que confieren ese aspecto de castillo al asentamiento y que no se adosan al muro exterior del palacio del siglo XIV, lo que nos ha permitido diferenciar ambas fases. En 1423 se siguen denominando en las fuentes escritas como palacios, pero esto no quiere decir que aún en esta fecha no se había fortificado, pues seguramente se consideraba un palacio fortificado y merecía tal mención (Figura 20.). Conviene recordar que ningún documento escrito lo denomina castillo e incluso cuando ya en 1528 no cumple tal función, aún se sigue denominando a la construcción los Palacios Viexos (AHN, NOBLEZA, OSUNA, CAJA 1693, 32, 1-2). La tipología de su construcción se podría fechar a partir de 1435, cronología que también coincide con la situación de estabilidad del señorío que propiciaría la edificación de una fortaleza como esta. E incluso se pueda retrasar algo más ese momento a partir de 1445, cuando se instituyó el marquesado de Santillana en la persona de Íñigo López de Mendoza, de quien se sabe fue artífice de reformas en varias de sus posesiones serranas y alcarreñas, entre otras obras en el castillo de Buitrago, en el castillo y murallas de Hita, así como en sus casas mayores de Guadalajara.

Figura 20. Planta del asentamiento de la Fase 2. Imagen: equipo arqueológico del Castillo Viejo de Manzanares El Real.
El palacio fortificado del siglo XV cuenta con cuatro torres situadas en los ángulos (T1, T2, T3 y T4) siendo todas ellas estratigráficamente coetáneas. Tres de ellas son circulares (T2, T3 y T4) con 5 m de diámetro y una gran torre del homenaje de planta cuadrada (T1) en la esquina sureste junto a la puerta. Los lienzos (L1a, L1b, L2, L3 y L4) se atan con las torres, por lo que su proceso constructivo sería similar en todo el castillo y, muy probablemente, avanzó de forma horizontal en toda la planta. Cuando se completaba una altura, se comenzaba la siguiente en todo el perímetro. Está levantado mediante una mampostería de granito encintada con una verdugada de ladrillo, que presenta una altura de caja de 1,1 m como media, rellena de hormigón de cal de gran calidad al interior mezclado con ripios. No obstante, como se aprecia en la base de la zona conservada del castillo, en algunas zonas no se marca la hilada de caja con ladrillo, sino que se dispone una lechada de mortero de cal y se enripia. Este segundo sistema es el utilizado al interior, ya que en los paños intramuros no se utiliza el ladrillo. Desde el punto de vista constructivo estamos ante una obra muy homogénea, aunque se aprecia el trabajo de todo un conjunto de cuadrillas de alarifes.
Durante la segunda y tercera campaña, se excavó la torre suroeste (T4) (Figura 21.), donde en la UE 4004 aparece el primero de los 12 perros recuperados en ese espacio y nivel (Figura 22.). Está en conexión anatómica (Localizado 18 de 2021-P1, 2021/20/382), tumbado sobre el lado derecho, parece de talla mediana o grande. Después fueron localizados once más, pero ya casi todos revueltos y movidos por las características del nivel estratigráfico, repleto de piedras y con numerosos huecos por los que se colaban los huesos al retirar la tierra o los bloques. Los diferentes ejemplares se individualizan y numeran por la aparición del cráneo y se trata de asociar los restos que son más seguros de cada uno de ellos. En general los animales aparecen en la zona más cercana a la esquina SW del castillo o hacia el centro de la torre. Podría indicar que fueron arrojados desde el interior de la fortaleza al cubo ya desmochado, puesto que no hay acceso al cubo documentado hasta esa cota de aparición de los perros. Se descarta que hayan podido caer de forma accidental por el elevado número de individuos y su concentración en la misma unidad estratigráfica.

Figura 21. Fotografía aérea de la torre suroeste (T4). Imagen: equipo arqueológico del Castillo Viejo de Manzanares El Real.

Figura 22. Perro en conexión anatómica del interior de la torre suroeste (T4). Imagen: equipo arqueológico del Castillo Viejo de Manzanares El Real.
A 1,29 m de profundidad, comienza a aparecer un nivel con sedimento más abundante y menos cascotes grandes (UE 4006). Contiene restos óseos de animales más pequeños, algunos de ellos posiblemente de los perros situados más arriba que fueron colándose por los huecos entre piedras y cascotes. Se identifican ratones y en algunos cráneos hay evidencias de roturas en la nuca, lo que permitiría plantear que fueron cazados por aves rapaces y quizá un búho o ave similar pudo anidar en la torre.
A 2,6 m se localiza un nivel de mortero de cal que interpretamos como el mortero del llagueado de las paredes del cubo desprendido y caído (UE 4008). Ocupa medio metro junto a las paredes y disminuye de potencia hacia el centro. Apoya sobre un suelo de tierra compactada con mortero de cal (UE 4009) que aparece a 3 m de profundidad (Figura 23.). Tiene unos 3 cm de grosor. Se decide abrir una pequeña cata de comprobación de la base de ese suelo con unas dimensiones de 40 x 50 cm. El relleno bajo el suelo (UE 4010) está muy compacto en los primeros 10 cm por filtrado del mortero de cal, luego es más suelto. Se trata de un relleno homogéneo de tierra arenosa muy oscura, con cenizas y pequeños restos de carbón. Aparecen fragmentos pequeños de tejas, escorias y restos de adobes con improntas, algunos muy quemados que podrían provenir de un horno.

Figura 23. Fotografía final de la excavación de la torre suroeste (T4, UE 4009). Imagen: equipo arqueológico del Castillo Viejo de Manzanares El Real.
En este nivel se recuperan restos de varios recipientes cerámicos de uso y factura común, olla, cazuela, poco definitorios a la hora de su cronología. Unos a 23 cm y otros a 35 cm bajo el suelo. Un pequeño fragmento de loza verde turquesa es el único dato que podría llevar este nivel a cronologías de los siglos XIV-XV. Finalmente se consigue llegar a niveles estériles y geológicos a una profundidad de 3,68 cm de profundidad.
En la campaña de 2022 procedimos a excavar también la T1 o torre del homenaje (Figura 24.). Es la zona de la fortaleza que presentaba menos potencia arqueológica y nos ha permitido llegar hasta el nivel geológico. Después de una limpieza superficial que nos permitió perfilar y adecentar la zona (US 1000), donde recuperamos materiales fuera de contexto, sobre muros o movidos, procedimos a la excavación de la torre completa siguiendo el perfil que había permanecido después de los trabajos previos durante las labores de limpieza mecánica del año 2020.

Figura 24. Fotografía final de la excavación de la torre del homenaje. Imagen: equipo arqueológico del Castillo Viejo de Manzanares El Real.
En primer lugar, se inició la excavación del nivel de derrumbe (UE 1001) que está formado por piedras grandes caídas de los muros perimetrales de aproximadamente 25 x 20 cm. Debajo de esta unidad estratigráfica, se halló en las cinco zonas un relleno gris y marrón, de arena de grano medio y compacta (UE 1002). Debajo de esta unidad, se hallaba un suelo de mortero de cal (UE 1003) que regulariza la superficie del suelo evitando los desniveles que genera el geológico que aflora más en la zona oeste de la torre. En esta unidad se hallaron restos de estuco pintado amarillento con línea recta rojiza (Localizado 12, 2022/12/91, 92 y 93). Más importante resulta el hallazgo de una moneda (Localizado 9, 2022/12/31) que corresponde a una blanca de rombo de Enrique IV de la ceca de Burgos fechada entre el 1471 y 1474 (Figuras 25 y 26). Esta cronología es importante porque corresponde a los últimos años del castillo viejo. Un año después se construye el castillo nuevo, pero esta moneda debe marcar el último periodo de uso del antiguo palacio fortificado. La UE 1009 corresponde al mortero de cal en la parte más inferior de la torre que se podido reconocer junto a los muros perimetrales. Además de regularizar en esta zona el nivel, permite aislar de la humedad la parte superior.

Figura 25. Anverso de blanca de rombo de Enrique IV de la ceca de Burgos fechada entre el 1471 y 1474 localizada en la torre del homenaje. Imagen: SECYR.

Figura 26. Reverso de blanca de rombo de Enrique IV de la ceca de Burgos fechada entre el 1471 y 1474 localizada en la torre del homenaje. Imagen: SECYR.
En las esquinas de la torre del homenaje, se localizaron marcas de cantero que podrían corresponder a marcas de propiedad, utilizadas por las agrupaciones de oficios artesanos para contabilizar el número de piezas trabajadas por cada cantero y de esta forma cobrar por la cantidad de piedras labradas, marcas de posición y ensamblado para que el albañil las colocara en una posición determinada y signos que permitían identificar los talleres en la Edad Media. Se han podido reconocer cinco en la esquina noreste, tres en la sureste y cuatro en la suroeste.
En la esquina noreste, se documentan dos en el muro norte (UEM 1100): uno en el sillar inferior (que mide 62 x 23 cm de altura) en forma de asterisco de 10 x 10 cm en la sureste y otro en el segundo sillar (desde el suelo) en forma de doble cola de milano, orientado en sentido horizontal, de 7 x 3 cm; el sillar mide 60 x 29 cm. En el muro este (UEM 1300) se localizaron tres: uno en el sillar inferior en forma de estrella de 10 x 6 cm; otro más en forma de doble cola de milano en posición vertical de 7 x 4 cm y, en el siguiente, otro del mismo tipo de 19 x 10/9 cm.
En la esquina sureste, se documentan tres más correspondientes a la misma tipología: uno en forma de doble cola de milano de 18 x 9 cm en el tercer sillar (desde el suelo) y en el muro sur (UEM 1200), dos estrellas: una de 10 x 10 cm en el sillar inferior (de 62 x 26 cm) y en el segundo sillar (de 36 x 30 cm) otra de 13 x 12 cm.
En la esquina suroeste, se documentaron en el muro sur (UEM 1200) otras cuatro marcas horizontales en forma de doble cola de milano; una en el sillar inferior de 9 x 7 cm, otra de 7 x 3,5 en el segundo sillar y una más de 16,5 x 7,5 cm en el tercero. En el muro oeste (UEM 1400), una se localizó en el sillar inferior de 12 x 8 cm.
El acceso a la zona superior de la torre del homenaje se realiza mediante una escalera de cinco peldaños conservados, aunque sus losas están expoliadas casi totalmente (Figura 27.). En el tramo superior, al sur, de dirección descendiente este-oeste, se encuentra un rellano de 1,65 x 1,66 m y 9 peldaños, con dirección descendente, al oeste, en dirección sur-norte, de los que se conservan completos cinco de ellos. Termina en otro rellano parcialmente documentado que tiene unas dimensiones de 1,65 x 0,67 m hasta el perfil norte. Los escalones tienen unas dimensiones generales de 96 cm de anchura, 47 cm de paso y 17 cm de altura. Los sillares empleados en la construcción de la escalera también cuentan con marcas de cantero triangulares, de N o Z y un asterisco, que aparecen en la cara vertical de los escalones.

Figura 27. Escalera de subida a la torre del homenaje. Imagen: equipo arqueológico del Castillo Viejo de Manzanares El Real.
En la campaña de 2023, se practicó un sondeo, de 13 m de longitud y 1 m de anchura, en la fachada este de la torre del homenaje con el fin de determinar si el edificio contaba con foso. Este finalmente no se documentó, pero sí aparecieron restos de un enlucido pintado (Localizado 8, 2023/14/13) con una franja de color rojizo semejante a los encontrados en el interior. Durante la retirada de las últimas unidades, aparecieron esgrafiados entre las piedras y algunos de los ladrillos. Este esgrafiado de un color grisáceo mantiene las características estilísticas de los encontrados en campañas anteriores en el interior del castillo. Esta información es interesante porque la decoración exterior debió, en cierto modo, de imitar la externa del antiguo palacio.
En cuanto a la fortificación tardía, en la campaña de 2024 se excavó el relleno de la puerta del palacio fortificado (UE 130006), formado por grandes bloques de piedra que forman un murete de contención de tierras más o menos careado hacia el este y un relleno de tierra, y cascotes al interior. En la parte baja son más abundantes los restos de mortero y enlucidos. Se llega hasta el muro en lo que debió de ser la parte inferior del supuesto umbral del vano de acceso de la fortaleza. No hay evidencias de apoyos de jambas de los laterales del vano, pero sí aparecieron algunos fragmentos de sillares decorados.
La planta cuadrangular con torres circulares en tres de sus esquinas y una gran torre del homenaje también cuadrangular, próxima a la puerta de acceso al recinto, remite a modelos arquitectónicos de mediados del siglo XV. Aunque la documentación escrita retrotrae al siglo XIV la presencia de una construcción palaciega, es obvio que la tipología de las defensas visibles hoy día nos informa sobre un amurallamiento en la siguiente centuria, de modo que no podemos mantener la idea expresada por Federico Bordejé, quien en 1934 visitaba el lugar y anotaba que el castillo primitivo “demuestra, en general, una continuación del siglo XIV o tal vez del XIII por la escasez de torreones que tiene” (Marín Bailly-Baillière, 2005: 82). Tal imprecisión podría ser comprensible en el estadio inicial de los estudios sobre las fortificaciones hispanas a principios del siglo XX, pero en la actualidad tenemos muchos más elementos de análisis, la metodología se ha desarrollado considerablemente y podemos establecer numerosos paralelos constructivos que nos permiten determinar cronologías y tipologías con cierta precisión.
El modelo defensivo del “castillo viejo” remite a castillos hispanos del XV (Cooper, 1991, I.1: 38 y 75-76), según el cual presenta la torre del homenaje en una de las esquinas del recinto, aunque esta también podía ocupar el centro de alguno de los costados o incluso elevarse en el interior del encintado defensivo, completamente aislada del perímetro externo de la fortaleza. Los castillos de la denominada Escuela de Valladolid llevaron este modelo de fortaleza hasta su máximo desarrollo y regularidad (cf. Cobos Guerra y Castro Fernández, 1998: 147-167; 2011) (Figura 28.). A esta generación de castillos corresponden las fortalezas de Portillo (c. 1444) (Balado, 2001), La Mota de Medina del Campo (c. 1460), Fuensaldaña (c. 1465), Torrelobatón (1455-1473), Villavellid (c. 1465), Fuentes de Valdepero (1466), Villafuerte de Esgueva (c. 1473), Fuente El Sol (c. 1474) o Villalonso (1470-1475), a los que se suman los castillos de Peñafiel, Belmonte de Campos, Foncastín y Canillas de Esgueva (Retuerce y Cobos, 2017: Figura 2.), caracterizados todos por sus plantas cuadradas en la que se inserta la torre del homenaje, también cuadrangular, en una de las esquinas o en uno de sus lados; todos presentan cubos circulares en dichas esquinas y una distribución interna, en torno a un patio, de carácter palacial (Figura 29.). A partir de las intervenciones de Enrique IV en La Mota de Medina del Campo o en Portillo, hacia 1454, muchos nobles van a repetir este esquema formal a la hora de edificar sus castillos, pero no las mismas dimensiones, ya que los nuevos edificios se escalan en función de las posibilidades económicas de sus respectivos linajes. Pero se trata, en cualquier caso, de obras con un estudiado juego de volúmenes, ya que en todos ellos la torre del homenaje presenta la misma altura que la longitud del lado del recinto, mientras que los muros perimetrales tenían exactamente la mitad de altura que dichas torres del homenaje (Cobos Guerra y Castro Fernández, 1998: 147-167).

Figura 28. Mapa de dispersión de los castillos de la Escuela de Valladolid. Imagen: autores, a partir de Retuerce y Cobos 2017.

Figura 29. Plantas comparadas a la misma escala de los castillos de la Escuela de Valladolid. 1. Recinto del castillo de La Mota hacia 1468, antes de la construcción de la barrera artillera de los Reyes Católicos, 2. Recinto del castillo de Portillo hacia 1444, antes de la construcción de la barrera artillera del conde de Benavente. 3. Castillo de Fuensaldaña, iniciado antes de 1465, sin las restauraciones del siglo XX. 4. Castillo de Torrelobatón, 1455-73. 5. Castillo de Villavellid, hacia 1465. 6. Castillo de Fuentes de Valdepero, terminado hacia 1466 y engrosada su torre en el siglo XVI. 7. Castillo de Villafuerte, hacia 1473, sin la barrera exterior. 8. Castillo de Fuente el Sol, hacia 1474. 9. Castillo de Villalonso, 1470-75, sin la barrera exterior. Imagen a partir de Cobos Guerra y Castro Fernández, 1998 y Balado, 2001.
Por lo que respecta a la torre del homenaje, en Manzanares se ubicaba en el extremo suroriental del recinto, en su esquina más visible desde la cañada y el camino sobre el que el castillo ejercía un control y vigilancia evidentes. Puede, incluso, que en su fachada sur fuera insertado un escudo o algún elemento heráldico que sirviera como elemento significativo, lo que remarca el carácter simbólico de este tipo de torres que, pese a ser ya un elemento anacrónico de la poliorcética progresivamente adaptada a la artillería, no dejó de construirse en Castilla con una inercia llamativa durante el XV (Cooper, 1991: I.1, 35-37). La torre, además, está en plena conexión con la puerta del castillo, ya que se proyecta significativamente de la línea del lienzo para controlar el acceso al recinto.
Aunque no sabemos con certeza cuándo se abandonó e inutilizó este palacio fortificado, la construcción del nuevo castillo en 1475 debe marcar los últimos años de su uso. Una moneda en la torre del homenaje, fechada entre 1471 y 1474, se encuentra en estos últimos momentos antes de que fuera abandonado. A finales del XV, se propone la paralización de la obra de la fortaleza, y su demolición parcial, ante el inicio de la construcción del Castillo Nuevo de Manzanares. No disponemos, por el momento, de información del estado en que se encontrarían las obras en el perímetro o en el interior del castillo viejo que, por la cultura material que se aprecia en el entorno, podía haber comenzado a ser habitado. Existe un enrase en la zona superior de todos los muros hasta marcar una cota similar, quizás la necesaria para que fuera inefectivo desde el punto de vista militar. No creemos que se procediese a un proceso de desmonte de sus materiales por resultar complejo y quizás innecesario el reaprovechamiento de los mismos, teniendo en cuenta la abundancia de material que ofrece el entorno, aunque sí debió de producirse su inutilización militar. No obstante, las piedras labradas y esquineras, por su mayor valía, sí pudieron reaprovecharse en la otra fortaleza. Sea como sea, a mediados del siglo XVI ya no cumple la función de residencia, sino de campo de labranza.
A partir de mediados del siglo XVI se extiende un largo periodo caracterizado por el abandono del palacio fortificado (ss. XVI-XIX) y su readaptación con unos fines probablemente agropecuarios. Se tiene constancia escrita, a partir de inicios del siglo XVI, del uso del emplazamiento como zona de siembra. Sabemos de la construcción en 1540, junto a los Palacios para hazerlo de cubo a cubo (AHN, NOBLEZA, OSUNA, CAJA 1693, 32, 1-2), del que no hay testimonio arqueológico. Es posible que en este momento se proceda a un reaprovechamiento de materiales del edificio, especialmente los relacionados con la puerta de acceso, que pudo destruirse, seccionando el lienzo 1 en dos paños distintos. Probablemente, se intentó tapiar el vano creado mediante un muro realizado con materiales reaprovechados.
A este periodo corresponde el edificio interior documentado desde las prospecciones geofísicas y excavado en las tres primeras campañas. Por el momento es la única estructura excavada en su totalidad. Este edificio tiene unas dimensiones de 18,60 x 7,10 m (Figuras 30, 31 y 32). Fue construido con mampostería y mortero de tierra con ripios de piedra y algunos fragmentos de ladrillos o tejas. En las esquinas y en algunos puntos de los muros presenta sillares o sillarejos, algunos de gran tamaño. Presenta dos muros internos durmientes separados entre sí a 1,35 m de anchura, de 0,70 m de anchura, que ocupan casi todo el largo del edificio. Cuenta con un vano o paso en la zona este del muro interior sur de unos 0,95 m y otro similar al oeste, quedando el muro exento del edificio. En el muro interior norte el vano solamente está en la zona oeste. Se adosa al este al muro del edificio. En los espacios intermurarios aparecen derrumbes homogéneos de tejas curvas sin marcas (UE 160004, 160005 y 160006 de norte a sur). Y por debajo un nivel de ocupación potente de unos 30-40 cm que incluye numeroso material arqueológico (UE 160007, 160008 y 160009). Este nivel se apoya sobre los restos del final del castillo, que contienen elementos constructivos abundantes (ladrillos, tejas, mortero de cal, etc.) y los restos de muros de tapial que aparecen también entre los derrumbes y rellenos preparados para la instalación del edificio interior.

Figura 30. Planta del asentamiento de la Fase 4. Imagen: equipo arqueológico del Castillo Viejo de Manzanares El Real.

Figura 31. Vista aérea del yacimiento con granero de la Fase 4. Imagen: equipo arqueológico del Castillo Viejo de Manzanares El Real.

Figura 32. Vista aérea del granero de la Fase 4. Imagen: equipo arqueológico del Castillo Viejo de Manzanares El Real.
Estos muros internos sostenían un sobrado de madera o entarimado que permitía conservar alimentos como el cereal, aislando del suelo el producto almacenado y manteniendo unas condiciones de temperatura y humedad idóneas para su conservación, además de alejarlo de posibles roedores. Estos muros no solo se apoyan sobre los dos muros internos, sino también sobre seis bloques de granito adosados al muro norte (UEM 160101 a 160106). No presentan una separación homogénea y regular, tampoco su potencia es la misma. Cinco de ellos están a similar cota, mientras que el bloque 6 aparece más abajo. Este tipo de estructura responde claramente al almacenaje a largo plazo de cereal, bien documentado en época ibérica con gran profusión en época romana (autores). Las dimensiones de este enorme granero son indicativas de la gran capacidad de almacenaje del depósito, cuyas estimaciones no se pueden determinar ante la localización de la parte inferior del edificio8. La localización de una piedra de molino de 73 x 48 x 8 cm junto al granero informa sobre las prácticas agrícolas dentro del espacio defensivo y su transformación en harina para la fabricación de pan (Localizado 13 de 2023, 2023/14/26).
En un momento indeterminado debe de cesar su uso como granero y, como suele ser habitual en este tipo de edificios, pudo emplearse ya como almacén genérico. Testimonio del cambio del uso de la construcción es la localización en el espacio intermurario central de un recipiente de almacenaje probablemente tipo orza (Localizado 9 de 2023, 2023/14/276), con doble asa de cinta, cuya base se introduce en el nivel inferior de derrumbes del castillo (Figura 33.). Probablemente fue parcialmente enterrada su base para mantener mejor su verticalidad y apoyo, sin que sea visible la excavación de fosa para ello. Entre los materiales recuperados destacamos numerosos fragmentos cerámicos de recipientes localizados en 2021 y 2022 en la esquina suroeste del edificio, que se han podido identificar como conejeras (Localizado 1 de 2023, 2023/14/153, 2023/14/221, 2022/12/354).

Figura 33. Recipiente localizado en el suelo del almacén que reaprovecha el antiguo granero de Fase 4. Imagen: equipo arqueológico del Castillo Viejo de Manzanares El Real.
En el siglo XIX se llevaron a cabo una serie de intervenciones en el edificio y su entorno que alteraron significativamente su morfología y volúmenes. En primer lugar, en la zona sur del yacimiento, se inició la construcción del cementerio municipal (Figura 2.). En este sentido, aprovechando la torre 1, la torre 4 y el lienzo sur como cierre por el norte del recinto funerario, se levantó la tapia del cementerio, con piedra acarreada del propio edificio, en el caso de pequeñas piezas que estuvieran rodadas ya, además de las que se hallaban en el entorno. Los muros se aparejaron mediante una fábrica de mampostería trabada con mortero de cal y posteriormente revestida. En el costado oriental se construyó el edificio 2 destinado a depósito de cadáveres. Durante esta fase se alteraron parcialmente el lienzo sur y la torre del homenaje, con la instalación de nichos y lápidas funerarias. Por otro lado, el interior del asentamiento y el entorno inmediato se convirtieron en un centenal. La principal evidencia de este proceso ha sido el aporte de tierras para enriquecer la siembra que se hacía en el entorno. Además, en este proceso, pudo afectarse la zona apical de los muros del castillo con el expolio de algunos materiales, en especial en el costado occidental. Con la decaída del uso agrícola comenzaría el vertido de escombros y basuras en el interior.
Finalmente, se realizaron trabajos de ajardinamiento de todo el espacio exterior inmediato al castillo, lo que lo convirtió en una zona de disfrute para los vecinos, aunque no se tuvo en cuenta el valor patrimonial del edificio. Se plantaron una serie de árboles y arbustos junto a los paramentos, a la vez que se instalaba mobiliario en toda la zona arqueológica. La mejora de la urbanización de Los Palacios, que rodea el espacio de la fortaleza, conllevó la creación de viales que afectaron a las zonas norte y oeste del castillo. Las actuaciones previas y las campañas de excavaciones arqueológicas en el Castillo Viejo de Manzanares El Real han supuesto un importante avance en el conocimiento de este edificio del que se conocía su origen y evolución. El modelo de excavación es muy singular al incentivar la participación ciudadana en el trabajo de campo (arqueología social)9 con un fuerte componente inclusivo mediante la incorporación de personas con diversidad funcional (arqueología inclusiva)10, formando parte del Proyecto Redes de la Dirección General de Patrimonio Cultural de la Comunidad de Madrid (Figura 34.)11. La participación directa de voluntarios y también de estudiantes, mediante la realización de prácticas curriculares y extracurriculares, en la excavación tiene por objetivo concienciar sobre la importancia del patrimonio arqueológico e histórico y en la necesidad de su conservación y protección con un seguimiento semanal del progreso de los trabajos arqueológicos12.

Figura 34. Exterior del castillo donde se aprecia la muralla y la topografía de la fortaleza. Imagen: equipo arqueológico del Castillo Viejo de Manzanares El Real.
La revisión de la documentación escrita y los resultados de las excavaciones arqueológicas realizadas en el Castillo Viejo de Manzanares El Real han permitido identificar cinco fases constructivas del yacimiento que resuelven una incógnita importante sobre la ocupación del yacimiento. Por un lado, las fuentes escritas informaban de que, en tiempos de Alfonso XI, concretamente en el año 1346, el rey mandó venir a unos carpinteros al lugar de Manzanares para adobar los palacios, una referencia que alude por tanto a una residencia anterior al castillo, en las tierras del Real de Manzanares, un territorio que quedó en manos de doña Leonor de Guzmán (1310-1351), amante del rey Alfonso XI (1311-1350) y madre del primero de los reyes de la dinastía Trastámara. Sin embargo, el estudio tipológico de la fortaleza exterior remite a los castillos del siglo XV, con planta cuadrangular, tres torres circulares y una torre del homenaje destacada.
El estudio arqueológico ha permitido diferenciar una primera fase con estancias organizadas en torno a un patio central levantadas con muro de tapial y reforzado con machones de ladrillo; al exterior estos muros de tapial se hallaban decorados con esgrafiado de tradición segoviana que presenta en la fachada oriental un diseño formado por círculos paralelos y estrellas de once puntas que remite al siglo XIV. A mediados del siglo XV, se procede a la construcción de las defensas (Fase 2), de las que se han podido excavar el acceso principal, la torre suroeste (T4) y la torre del homenaje, a la que se accedía a través de una escalera y no una rampa como presumíamos en un inicio. Una moneda localizada en su interior fecha esta ocupación en torno a los años 1471-1474, es decir, un periodo muy próximo a la construcción del castillo nuevo. En la fase 3, a partir del siglo XVI, se abandona el edificio cuando o bien se desmocha o no se termina de construir la altura total de defensas y torre del homenaje, como se ha documentado en otros castillos del mismo momento (por ejemplo, Fuente El Sol, c. 1474). En una cuarta fase, ya dedicado el yacimiento a trabajos agrícolas, se construye un enorme granero apoyado sobre dos muros internos y apoyos, que presenta una orientación diferente y se apoya sobre las estructuras de la Fase 2. Este granero posteriormente pasa a cumplir la función de almacén genérico. En el siglo XIX y XX en la parte meridional de la fortaleza se adosa un cementerio con una estancia dedicada al tratamiento de los cuerpos.
Queremos mostrar públicamente nuestro agradecimiento a todos los estudiantes, voluntarios e investigadores que han participado en las cuatro campañas de excavación arqueológica realizadas hasta el momento en el Castillo Viejo de Manzanares El Real. También es nuestro deseo mostrar nuestra gratitud por el apoyo prestado al Excelentísimo Ayuntamiento de Manzanares El Real y a la Dirección General de Patrimonio Cultural de la Comunidad de Madrid, que han financiado los trabajos de excavación, conservación, restauración y transferencia de conocimiento. También nos gustaría hacer constar el asesoramiento científico realizado por David Gallego Vallés (Universidad de Castilla-La Mancha). Por último, queremos agradecer a los compañeros de APADIS su implicación diaria en el proyecto en favor de una arqueología inclusiva abierta a todos los ciudadanos.
Amador De los Ríos, J. (1861): Historia de la villa y corte de Madrid. T. I, ed. Facsimil, 1861, Madrid, pp. 293-296.
Balado Pachón, A. (2001): “Las fases constructivas del castillo de Portillo (Valladolid)”, en P. L. Huerta Huerta (coord.), La fortificación medieval en la península ibérica: actas del IV Curso de Cultura Medieval. Seminario, Centro de Estudios del Románico, Aguilar de Campoo, pp. 263-271.
Bordejé Garcés, F. (1934): “Rectificaciones históricas. El primitivo castillo del Real de Manzanares”, Arte Español, III, 3, pp. 135-163.
Cayetano Martín, M. C. (1991): La documentación medieval en el Archivo de Villa (1152-1474), Madrid: Ayuntamiento, Archivo de Villa, Madrid.
Ceballos-Escalera y Gila, A. de (1991): El Torreón de Lozoya y sus dueños, Segovia: el autor.
Cobos Guerra, F.; Castro Fernández, J. J. de (1998): Castilla y León. Castillos y fortalezas. León: Edilesa.
Cobos Guerra, F.; Retuerce Velasco, M. (2011): Metodología, valoración y criterios de intervención en la arquitectura fortificada de Castilla y León. Catálogo de las provincias de León, Salamanca, Valladolid y Zamora. Valladolid: Junta de Castilla y León.
Cooper, E. (1991): Castillos Señoriales de la corona de Castilla. Valladolid: Junta de Castilla y León, Consejería de Cultura y Turismo.
Escudero Navarro, Z. (2010): “Un nuevo uso para el "Castillo Comunero" de Torrelobatón, Valladolid”, Estudios del Patrimonio Cultural, 5, pp. 31-53.
Gil Crespo, I. J.; Maldonado-Ramos, L. (2015): “Hacia una taxonomía constructiva de las tapias de tierra y fábricas encofradas históricas”, Informes de la construcción, 67, n.º 538, https://dx.doi.org/10.3989/ic.14.009
González y González, J. (1975): Repoblación de Castilla la Nueva, Universidad Complutense, Facultad de Filosofía y Letras. Madrid.
Gómez Osuna, R. (2005): “El primer Castillo del Real de Manzanares”, Cuadernos de estudios: revista de investigación de la Asociación Cultural "Pico San Pedro", 19, pp. 265-279.
González Crespo, E. M. (2010): “Actuaciones de la monarquía castellana en el Real de Manzanares en la Baja Edad Media”, pp. 241-313, https://www.ucm.es/data/cont/docs/889-2014-05-29-esther.pdf
López González, Á. L. (1977): El Real de Manzanares y su Castillo. Madrid: Comunidad de Madrid.
López Guzmán, R. (2005): Arquitectura mudéjar. Del sincretismo medieval a las alternativas hispanoamericanas, 2.ª ed. Madrid: Cátedra.
Marín Bailly-Baillière, J. (2005): “Los castillos de la Comunidad de Madrid en el legado Bordejé”, Castillos de España, n.º 137-138-139, pp. 81-90.
Martínez Moro, J. (1985): La tierra en la comunidad de Segovia. Un proyecto señorial urbano (1088-1500). Valladolid: Universidad de Valladolid.
Mileto, C.; Vegas López-Manzanares, F.; García Soriano, L. (2013): “La técnica constructiva de la tapia en la arquitectura militar y defensiva en España. Variantes e invariantes”, en S. Huerta y F. López Ulloa (eds.), Actas del Octavo Congreso Nacional de Historia de la Construcción, Madrid, pp. 681-687.
Millares Carlo, A.; Varela Hervías, E. (1932): Documentos del Archivo General de la Villa de Madrid, Segunda serie, Tomo I, Madrid.
Pérez Chozas, A.; Millares Carlo, A.; Varela Hervía, E. (1932): Documentos del archivo general de la villa de Madrid, Segunda serie, Madrid.
Pérez Higuera, M.ª T. (1993): Arquitectura mudéjar en Castilla y León. Valladolid: Junta de Castilla y León, Consejería de Cultura y Turismo.
Pozuelo Ruano, A. (2021): “Los palacios de Manzanares El Real. Un castillo de Alfonso XI”, Cuadernos de Estudios Asociación Cultural Pico San Pedro, 35, pp. 83-100.
Retuerce Velasco, M.; Cobos Guerra, F. (2017): “Apuntes sobre los procesos de fortificación en el territorio de la Corona de Castilla”, en L. María Cardoso Rosas, A. C. Sousa y H. Barreira (coords.), Genius Loci: lugares e significados, vol. 2, Santa Comba, pp. 15-50.
Ruiz Alonso, R. (2014): “Del encintado al esgrafiado: una hipótesis sobre el origen y desarrollo del esgrafiado a través de la arquitectura islámica y mudéjar”, Estudios Segovianos, 61, 113, pp. 105-165.
Ruiz Alonso, R. (2015): Esgrafiado: materiales, técnicas y aplicaciones, Instituto de la Cultura Tradicional Segoviana Manuel González. Segovia.
Ruiz Alonso, R. (2017): “El torreón de Lozoya en sus revestimientos murales. Las dos corrientes del esgrafiado europeo reunidas en un edificio segoviano”, Boletín del Museo e Instituto Camón Aznar, 115, pp. 61-126.
Ruiz Alonso, R. (2019): Esgrafiado. Historia de un revestimiento mural. De la Antigüedad al Renacimiento. Segovia: Instituto de la Cultura Tradicional Segoviana Manuel González Herrero.
Ruiz Alonso, R.; González Herrero, M. (2017): “El Torreón de Lozoya en sus revestimientos murales. Las dos corrientes del esgrafiado europeo reunidas en un edificio segoviano”, Boletín Museo e Instituto Camón Aznar, 115, pp. 61-126.
Segura Graíño, C. (1995): “Madrid en la Edad Media. Génesis de una capital 873-1561”, en S. Juliá, D. Ringrose y C. Segura, Madrid, historia de una capital, pp. 11-158.
Tormo, E. (1946): “El estrecho cerco del Madrid de la Edad Media por la admirable colonización segoviana”, Boletín de la Real Academia de la Historia, 118, pp. 47-205.
Vera, J. De; Albertos Redondo, F. (1911): El Torreón de Lozoya. Segovia: Caja de Ahorros y Monte de Piedad de Segovia.
_______________________________
1 Universidad Autónoma de Madrid. https://orcid.org/0000-0002-0080-9278
2 Universidad Autónoma de Madrid. https://orcid.org/0000-0001-5776-0949
3 Equipo Patrimonio Sierra 2017 SL. https://orcid.org/0000-0001-5605-0240
4 Universidad Autónoma de Madrid. https://orcid.org/0009-0005-7954-3327
5 Arqueóloga. https://orcid.org/0000-0002-7752-3980
6 Universidad Autónoma de Madrid. https://orcid.org/0000-0002-9606-6084
7 Traslado autorizado, 1312. En AVM-F-S 3-216-7 h. 26r.-v; Traslado autorizado, s. XVI. En AVM-s 3-218-1 (2); Traslado autorizado, 1778; signatura: 2-305-15.
8 Salvando las distancias, nos gustaría señalar que determinados castillos fueron empleados como almacenes en los años cincuenta del siglo XX cuando algunos pasaron a ser propiedad del Ministerio de Agricultura transformándolos en silos, como el castillo de Torrelobatón, lo que supone que una parte de sus estructuras se modificó radicalmente al ser convertida su planta baja en almacenes y otras instalaciones asociadas al procesado del cereal, ocupándose además una superficie amplia del patio con construcciones relativas a los mismos procesos, un proceso que se atestigua también en el castillo de Montealegre de Campos y el de Encinas de Esgueva en la provincia de Valladolid o el de Árevalo en la de Ávila (Escudero, 2010: 35).
9 https://www.comunidad.madrid/cultura/patrimonio-cultural/arqueologia-publica-castillo-viejo-manzanares-real
10 https://www.apadis.es/tag/castillo-viejo-de-manzanares/
11 https://www.comunidad.madrid/cultura/patrimonio-cultural/redes-patrimonio-cultural-comunidad-madrid
12 https://manzanareselreal.es/proyecto/castillo-viejo-cuaderno-de-excavacion/